Inscription / Connexion Nouveau Sujet
Niveau cinquième
Partager :

un abri de jardin.

Posté par
hfoul
03-04-20 à 01:55

Bonjour:

Comment je peux calculer le nombre de parpaings  pour construire un abri  de jardin de 5 m de long 4 m de large et 2,5 m  de hauteur.
Information de parpaings:
Largeur: 50 cm
Longueur: 20 cm
hauteur :10 cm.
J'ai déjà calculé le volume de parpaing qui fait 50 x 20 x 10= 10000 cm3 =0,01 M3.
Pour l' abri de jardin j'ai calculé le volume d un pavé droit et  c'était L x I x h  = 5 x 4 x 2,5= 50 m3 c'est V1 de rectangle et le V2 c'est le volume de prisme droit est:                
V2= 5 X 2, 5 /2 x 4 =25m3, Le volume total c'est 50+25= 75 .... C 'est bon SVP?
Merci pour vos conseils

Posté par
LaTermCdur
re : un abri de jardin. 03-04-20 à 02:22

Bonsoir,

Pourquoi calcules-tu le volume d'un prisme ?

Par ailleurs si tu comptes calculer le volume de l'abri et celui d'un parpaing, c'est que tu souhaites calculer combien de parpaings il te faut pour remplir l'abri entièrement ?

Posté par
hfoul
re : un abri de jardin. 03-04-20 à 02:57

LaTermCdur.
Bonsoir.
L abri C'est 5 x 4 x 2,5 = 50m3 et pour le Parpaing c'est 10 x 20 x 50= 10000cm3.
Ensuite 50/0,01= 5000  parpaing c'est beaucoup non?
Merci Pour votre soutiens  

Posté par
hfoul
re : un abri de jardin. 03-04-20 à 02:58

Pour le volume d' abri c'est sa forme?

Posté par
LaTermCdur
re : un abri de jardin. 03-04-20 à 04:10

Attention si tu fais ça, ça veut dire que tu remplis entièrement l'abri de parpaings (en somme c'est un solide plein), or tu veux que l'abri soit vide
--> Seuls les murs sont faits avec des parpaings tu es d'accord ?

Tu n'as donc pas besoin du volume de l'abri (mais bien de ses dimensions).

Posté par
mathafou Moderateur
re : un abri de jardin. 03-04-20 à 10:18

Bonjour,

de toute façon, comme dans tous les problèmes de ce genre l'important est de savoir comment on va disposer les parpaings pour que mis bout à bout dans chacune des dimensions ça fasse les dimensions de l'abri !!

à part des dispositions loufoques consistant à mettre certains parpaings debout verticalement (20x10 au sol et 50cm en hauteur) ou des murs de 50 cm d'épaisseur, ou pas tous de la même épaisseur ou certains parpaings qui dépassent et pas tous dans le même sens, ça ne marche pas.

et on ne sait pas si les dimensions de l'abri sont des dimensions extérieures ou des dimensions intérieures
et il n'y a pas de porte ??

peut être y a-t-il une figure avec cet exo ?
cliquer

attentionextrait de c_faq la FAQ du forum :

Q05 - Puis-je insérer une image dans mon message ? Comment faire ? Quelle image est autorisée ?


attention : uniquement rien que des figures en images
photo ou scans de texte interdites

Posté par
hfoul
re : un abri de jardin. 03-04-20 à 11:55

Bonjour
Les dimensions et la taille de parpaing.

un abri de jardin.

Posté par
mathafou Moderateur
re : un abri de jardin. 03-04-20 à 12:45

c'est pas ça qui manque , c'est le dessin de l'abri de jardin avec quelques parpaings dessinés dessus
(comment on dispose les parpaings pour construire le mur)

le problème est comment exactement sont disposés les parpaings aux angles de l'abri.
avec des parpaings entiers il n'existe aucune disposition satisfaisante
(comme j'ai dit des parpaings qui dépassent, des murs d'épaisseur la longueur des parpaings = 50 cm, des parpaings mis debout (50 cm en hauteur), un mur qui s'écroule parce que il n'est pas possible d'enlier les parpaings correctement etc)

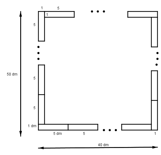
exemple :

un abri de jardin.
vue de dessus, dimensions en décimètres
mais !!
50 - 1 = 49 n'est pas divisible par 5 ! (et 40-1 = 39 non plus)

si on les dispose autrement, ce sera 50+1 ou 50 -2×1 ou etc jamais divisibles par 5
(et en plus le mur s'écroulera avec des lignes de ruptures verticales)

la seule solution valable est de casser des parpaings
par exemple :

un abri de jardin.

et de toute façon le problème de la porte reste entier !
ou alors un des 4 murs n'existe pas, mais lequel ?

Posté par
hfoul
re : un abri de jardin. 03-04-20 à 13:11

c' est bien sur, il faut avoir une porte .
C est pas claire tenant comment je peux savoir comment calculer  le nombre de parpaing?
Vu que c'est ça la clé pour mon travail rendu?
Merci

Posté par
hfoul
re : un abri de jardin. 03-04-20 à 13:13

c'est L x l= 50 x 40= 2000 parpaing c'est beaucoup non?

Posté par
hfoul
re : un abri de jardin. 03-04-20 à 13:16

il n'a pas un dessin d'abri.

Posté par
mathafou Moderateur
re : un abri de jardin. 03-04-20 à 13:34

regarde mon dessin

il n'y a aucune multiplication de quoi que ce soit

on ne met des parpaings que pour faire les murs , le pourtour de l'abri
pas pour remplir l'abri de parpaings ! il faut un vide au milieu ! sinon ce n'est plus un abri mais un bloc compact dans lequel on ne peut rien "abriter" !
il n'y a aucune notion d'aire ou de volume qui interviendrait dans cet exo

le nombre de parpaings dans la longueur de l'abri est (environ, voir le dessin) 5m divisé par la longueur d'un parpaing (50cm = 0,5m)

et on fait ça aussi dans la largeur de l'abri
et on additionne tous ces parpaings

puis on empile en hauteur sur autant de couche qu'il faut

Posté par
hfoul
re : un abri de jardin. 03-04-20 à 13:52

C est à dire c' est 250 à 300 parpaing?
Merci

Posté par
mathafou Moderateur
re : un abri de jardin. 03-04-20 à 14:09

???? comment en détail as tu calculé ça ???
ça ne tient pas debout de cracher un nombre (faux en plus) tiré d'un chapeau ou d'une boule de cristal.

Posté par
hfoul
re : un abri de jardin. 03-04-20 à 15:49

C 'était par apport à mes recherche et par apport à votre dessin explicatif:

Mes recherche sur internet c'est que  10  parpaing font 1 m2
Ensuite 5 x 4 x 2,5 = 50 m3 c'est    25 m2 après ça me donne 250 parpaing? est il correcte SVP?

Posté par
hfoul
re : un abri de jardin. 03-04-20 à 15:53

bien sur se type de parpaing  de taille 20 x 20 x 10 qui peut faire un mur de 1 m2 avec 08 à 10 parpaing.

Posté par
mathafou Moderateur
re : un abri de jardin. 03-04-20 à 16:32

20 x 20 x 10 ???
les parpaings de l'énoncé font 50 x 20 x 10 en cm !!

et tu n'as absolument pas montré tes calculs du tout, tu n'a fait que cracher des résultats qui ne riment à rien.

la notion même de de surface N'A AUCUN RAPPORT AVEC L'EXO
il faudra le répéter combien de fois ?
c'est pas de la peinture ! (pour étaler du parpaing liquide)
c'est des alignements de parpaings, tous dans le même sens !
celui de la photo d'un parpaing, avec l'épaisseur du mur qui fait 10cm (et qui ne comptera pas dans le calcul) et les 20 cm dans le sens vertical.

il s'agit d'aligner des parpaings pour faire des LONGUEURS et rien d'autre.

une longueur de 5m si j'aligne des parpaings de longueur 50 cm ça fait 500cm/50cm = 10 parpaings

et pareil dans chacune des dimensions linéaires de l'abri. (avec des valeurs numériques différentes, correspondant à l'énoncé))

et ensuite à partir de ces nombres de parpaings en lignes de calculer combien de couches de parpaings pour faire le mur jusqu'en haut.

et le résultat n'est pas un absurde "de ... à ...parpaings" mais un nombre bien précis de parpaings.

et si tu ne comprends toujours rien à ce qu'on ne cesse depuis le début de te répéter ressors ton jeu de Lego et fabrique physiquement cet abri de jardin
(en plus petit et avec d'autres valeurs numériques bien entendu)
et peut être comprendras tu comment on fait pour compter les briques utilisées pour faire ça !

Posté par
hfoul
re : un abri de jardin. 03-04-20 à 16:58

j'ai compter la porte c'est pour cela j'ai dit environ.

Posté par
hfoul
re : un abri de jardin. 03-04-20 à 17:01

et j'ai fait  le périmètre  d'un pavé droit c'est( L+I)x 2

Posté par
hfoul
re : un abri de jardin. 03-04-20 à 17:07

= 18/0,1= 180 parpaing.
S.V.P . Je consule se forum pour améliorer mes compétence.
Je tiens à vous remercier

Posté par
hfoul
re : un abri de jardin. 03-04-20 à 17:49

Est ce que c'est correcte? Merci

Posté par
mathafou Moderateur
re : un abri de jardin. 03-04-20 à 18:17

n'importe quoi

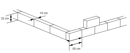
construire des murs c'est ça
on commence par un premier étage de parpaings, mis dans le sens normal où on doit mettre des parpaings (voir photo d'un parpaing dans l'énoncé), les 10cm étant l'épaisseur du mur.

un abri de jardin.

dans les 5m de longueur on met 5m/50cm = 10 parpaings (et un bout de 10cm qu'on ne compte pas, voir plus loin)
dans les 4 m de largeur de l'abri on met 4m/50 cm = 8 parpaings

c'est toujours partout les 50cm du parpaing qui comptent.

ce premier "étage" de parpaings compte donc 8 + 10 + 8 + 10 = 36 parpaings

les 10 cm ne servent à rien à part que il faudra casser certains parpaings
parce que 10 parpaings de 50cm plus la largeur de 10cm du mur d'à côté (voir figure) ça fait 5,10 m, et il faudra casser 10cm d'un des parpaings pour le raccourcir à 40cm x 10 x 20
9x50 + 40 + 10= 5,00 m pile.
ça ne change rien au nombre de parpaings qu'il faudra acheter (10 = 9 + 1)
de toute façon, pour les couches suivantes il faudra décaler les parpaings de 1/2 ou 1/3 de parpaing (voir figure), donc en casser bien d'autres.

ensuite
combien de couches comme ça de 20 cm de haut faut il empiler pour atteindre une hauteur de 2,5 m ?

et donc le nombre total de parpaings c'est le nombre de couches multimplié par 36, le nombre de parpaings par couche.

enfin la porte il est impossible d'en tenir compte puisqu'il n'en est pas parlé du tout dans l'énoncé.
on dira : il faut acheter au plus ... nnn parpaings
rien ne permettant de dire combien il faudrait en retirer pour la porte.

au pire si on suppose qu'un des côtés est entièrement sans mur du tout (c'est un abri, pas une maison !)
alors sur une couche il y aurait par exemple 8 + 10 + 8 parpaings seulement (un des murs de 5m n'existe pas
le reste des calculs se faisant de la même façon.

Posté par
hfoul
re : un abri de jardin. 03-04-20 à 18:49

Merci beaucoup.
Vous m'avez vraiment aider.
Maintenant je peux répondre au reste de mes questions facilement.
Est je peux calculer tous les dépenses.
Bonne journée



Vous devez être membre accéder à ce service...

Pas encore inscrit ?

1 compte par personne, multi-compte interdit !

Ou identifiez-vous :


Rester sur la page

Inscription gratuite

Fiches en rapport

parmi 1768 fiches de maths

Désolé, votre version d'Internet Explorer est plus que périmée ! Merci de le mettre à jour ou de télécharger Firefox ou Google Chrome pour utiliser le site. Votre ordinateur vous remerciera !