Inscription / Connexion Nouveau Sujet

1 2 +


Niveau autre
Partager :

Simplification

Posté par Aurélie_64 (invité) 21-05-05 à 19:49

Bonjour à vous,

Je voudrai savoir comme on peut simplifier cette expression

V = a.b(barre) + ab(barre)

D'avance merci.

Posté par
siOk
re : Simplification 21-05-05 à 19:52

(re) bonjour

l'énoncé est  a\bar{z}+\bar{ab} ?
  

Posté par
dad97 Correcteur
re : Simplification 21-05-05 à 19:52

hum pas très clair ton problème

que désigne a,b et V ?

Salut

Posté par
siOk
re : Simplification 21-05-05 à 19:52

je voulais dire   a\bar{b}+\bar{ab}

Posté par Aurélie_64 (invité)re : Simplification 21-05-05 à 19:53

siOk a raison.

je voudrais savoi si ce que siOk a ecrit est simplifiable

En vous remerciant.

Posté par N_comme_Nul (invité)re 21-05-05 à 20:02

Bonsoir !

À défaut de la simplifier, on peut la compliquer :
2{\rm Re}(a)\bar{b}

_____________________
Je suis nul en maths.

Posté par N_comme_Nul (invité)re 21-05-05 à 20:04

reBonsoir !

Au fait, que désigne \bar{a} ?

_____________________
Je suis nul en maths.

Posté par Aurélie_64 (invité)re : Simplification 21-05-05 à 20:05

Oula, j'ai pas etudié ca :p

Posté par Aurélie_64 (invité)re : Simplification 21-05-05 à 20:06

a(barre), c'est l'inverse de a.

Posté par manon91 (invité)re : Simplification 21-05-05 à 20:06

euhhhh .. il y a pas plus simple, mnt je me sens tte nule en maths

Posté par
siOk
re : Simplification 21-05-05 à 20:07

rappel:  \bar{ab}=\bar{a}+\bar{b}

a\bar{b}+\bar{ab}=a\bar{b}+\bar{a}+\bar{b}=\bar{b}(a+1)+\bar{a}

comme 1+a = 1      

a\bar{b}+\bar{ab}=\bar{b}.1+\bar{a}=\bar{b}+\bar{a}=\bar{ab}

Posté par Aurélie_64 (invité)re : Simplification 21-05-05 à 20:09

Comment faire les barre au dessus des lettres car j'aimerais vous montrer quelquechose.

Merci

Posté par
siOk
re : Simplification 21-05-05 à 20:09

=> N_comme_nul

attention ! ce n'est pas des complexes !
Aurelie64 travaille sur l'algèbre de boole ...


=> Aurelie64
rappelle le dans chaque topic différent ... sinon c'est pas évident comme te l'a fait remarquer dad97

Posté par N_comme_Nul (invité)re 21-05-05 à 20:10

Bonsoir !

Ok, ce ne sont pas des complexes !
Autant pour moi.

_____________________
Je suis nul en maths.

Posté par
siOk
re : Simplification 21-05-05 à 20:10

pour les barres, c'est expliqué en appuyant sur LATEX dans la barre en haut à droite (en noir)

Posté par Aurélie_64 (invité)re : Simplification 21-05-05 à 20:11

Dsl, autant pour moi ^^

Posté par N_comme_Nul (invité)re 21-05-05 à 20:13

Bonsoir !

Pour taper ceci, tu tapes, entre balises Tex :
\bar{}
et dans les accolades, tu mets ce que tu veux.
Par exemples, si tu tapes \bar{a}
tu auras : \bar{a}

Et pour \bar{a\bar{b}} : \bar{a\bar{b}}


_____________________
Je suis nul en maths.

Posté par Aurélie_64 (invité)re : Simplification 21-05-05 à 20:13

a b V R
0 0 0 0
0 1 0 0
1 0 1 0
1 1 1 1

Que représente V ?

J'ai mis que V = a\bar{b} + \bar{ab}
et que R = ab

En simplifiant V, on trouve que R =  \bar{V}

Or dans le tableau on trouve que c'est faux.

Ou est l'erreur ?

D'avance merci

Posté par Aurélie_64 (invité)re : Simplification 21-05-05 à 20:15

je vous la refais avec les balises ^^

a b V R
0 0 0 0
0 1 0 0
1 0 1 0
1 1 1 1

Que représente V ?

J'ai mis que V = a\bar{b} + \bar{ab}
et que R = ab

En simplifiant V, on trouve que R =  \bar{V}

Or dans le tableau on trouve que c'est faux.

Ou est l'erreur ?

D'avance merci

Posté par N_comme_Nul (invité)re 21-05-05 à 20:16

Bonsoir !

Aurélie_64 > tu dois mettre ça entre balises Tex :
Clique en bas sur le bouton [LTX] juste au dessus de [POSTER]

_____________________
Je suis nul en maths.

Posté par Aurélie_64 (invité)re : Simplification 21-05-05 à 20:16

je précise que c'est avec la simplification de siOk qu'on trouve que V et l'opposé de R

Posté par Aurélie_64 (invité)re : Simplification 21-05-05 à 20:17

je ne sais pas comment editer les messages, donc je reposte, dsl :S

Posté par
siOk
re : Simplification 21-05-05 à 20:21

Tu t'es trompé sur V


calcul de ab le tout barre:   barre(ab)

a   b    ab     ab le tout barre
0   0     0       1
0   1     0       1
1   0     0       1
1   1     1       0


calcul de a. b(barre) : seul b a la barre
a   b  b barre   a.b(barre                          
0   0     1       0      
0   1     0       0
1   0     1       1
1   1     0       0


et donc V
1
1
1
0

Posté par Aurélie_64 (invité)re : Simplification 21-05-05 à 20:23

Donc on se retrouve avec V = l'opposé de R.

Vous etes trop forts ^^

Merci a toi siOk, et aux autres aussi

Posté par N_comme_Nul (invité)re 21-05-05 à 20:40

reBonsoir !

Je ne connaissais pas ce genre de calculs, je viens de faire des petites recherches sous "Goût Gueule" et je viens de découvrir quelques règles de calcul. C'est amusant. Comme je programmais avant en assembleur, cela ne m'est pas trop dépaysant.

Ce qui m'a plu : loi de De Morgan.
Pour l'algèbre de Boole : \bar{A\cdot B}=\bar{A}+\bar{B}
Pour les ensembles : (A\cap B)^c=A^c\cup B^c

Merci pour ce topic, je viens encore d'apprendre quelque chose .

_____________________
Je suis nul en maths.

Posté par Aurélie_64 (invité)re : Simplification 21-05-05 à 20:49

Ah oui, je me disait pour V.

En faite V est determiné grace a un enoncé que j'ai oublié de signaler :


Un radiateur électrique est équipé d'un ventilateur de manière a assurer le refroidissement de la resistance. le fonctionnement de l'ensemble est le suivant :
* Le ventilateur peut fonctionner seul
* Le radiateur est calculé pour ne fonctionner que si le ventilateur est deja en marche
* L'arret du ventilateur doit necessairement se produire apres l'arret du radiateur et non simultanement.

On utilisera deux interrupteurs a et b. On prendra deux variables logiques V (Ventilateur) et R (radiateur). On pose une logique positive soit si le ventilateur fonctionne on a V = 1 et s'il est à l'arret on aura v = 0.


D'ou les valeurs de V, donc V = 0 0 1 1.

Donc V n'est plus l'opposé de R.

Ou est l'erreur ?

Merciii

Posté par
siOk
re : Simplification 21-05-05 à 22:46

Bon ... je n'y connais rien en ventilateur ...


1) ta question initiale était de simplifier   a\bar{b}+\bar{ab}
la réponse trouvée est \bar{ab}
je ne pense pas que l'on se soit trompé puisque les deux méthodes donnent le même résultat.

le reste dépasse mes compétences ... juste quelques questions cepapendant



2) Dans l'énoncé ci-dessus, il n'y a pas de question ????


3) d'où sors-tu  a\bar{b}+\bar{ab} ?


4) pourquoi  "D'ou les valeurs de V, donc V = 0 0 1 1" ?


5) "Donc V n'est plus l'opposé de R" je ne vois pas pourquoi il devrait l'être car le ventilateur peut fonctionner sans le radiateur et pas l'inverse ... il n'y a pas symétrie.


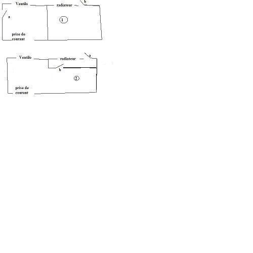
6) voici un circuit (voir 1) qui répond un peu au problème.

a           b             V            R    
0           1             0            0    rien ne fonctionne
0           0             0            0    rien ne fonctionne
1           1             1            1    les 2 fonctionnent
1           0             1            0    seul le ventilo marche

de plus le radiateur ne peut fonctionner sans le ventilo
on arrêter le radiateur sans couper simultanément le ventilo

seul hic, le ventilo peut démarrer en même temps que le radiateur
V = a
R = ab



7) voici un circuit (voir 2) qui répond au problème mais est-ce licite  ?

a           b             V            R    
0           1             0            0    rien ne fonctionne
0           0             1            0    seul le ventilo fonctionne
1           1             1            1    les 2 fonctionnent
1           0             1            0    seul le ventilo marche

de plus le radiateur ne peut fonctionner sans le ventilo

à l'arrêt le radiateur sera couper en actionnant un des deux interrupteurs et le ventilo tourne encore

A l'arrêt complet, les deux interrupteurs sont ouverts. Au démarrage,  le ventilo va partir le premier (un seul interrupteur actionné)

V = a + b
R = ab

cette seconde solution me plait bien


encore une fois, je suis ignare ... mais cela semble logique.






Simplification

Posté par Aurélie_64 (invité)re : Simplification 21-05-05 à 22:51

Dsl.

La question :

- Traduire les conditions de fonctionnement ci-dessous en condition logique et compléter le tableau suivant :

A B V R
0 0
0 1
1 0
0 0

- Exprimer V et R en fonction de a et b. Simplifier ces equations.

- Etablir le schéma de linstallation a l'aide des portes logiques élémentaires.


Dsl, j'ai ecrit trop vite.

^^

Posté par
siOk
re : Simplification 21-05-05 à 22:59

je te laisse lire le reste et me dire ce que tu en penses : je n'ai pas plus d'idées.


A demain.

Posté par
siOk
re : Simplification 21-05-05 à 23:09

tu es sure de la colonne du B dans

A B V R
0 0
0 1
1 0
0 0

Posté par manon91 (invité)re : Simplification 21-05-05 à 23:23

Le bon tableau est :

A B V R
0 0
0 1
1 0
1 1

Posté par
siOk
re : Simplification 21-05-05 à 23:26

et pourquoi mon second schéma ne convient pas alors ?

Posté par manon91 (invité)re : Simplification 21-05-05 à 23:28

Non car si l'interrupteur a n'est pas activé c'est à dire 1, le ventillateur V ne peut marcher. Je pense que le bon tableau est :

A B V R
0 0 0 0
0 1 0 0
1 0 1 0
1 1 1 1

Posté par
siOk
re : Simplification 21-05-05 à 23:36

si la réponse est
A B V R
0 0 0 0
0 1 0 0
1 0 1 0
1 1 1 1
on a       V = a     et        R = a.b
et cela peut correspondre à mon premier schéma.


personnellement je préférait le deuxième schéma ... le ventilateur fonctionne dès qu'un des deux interrupteurs est fermé et il ne fonctionne pas si les deux sont ouverts.
mais enfin, je n'ai jamais fait MPI !

Posté par manon91 (invité)re : Simplification 21-05-05 à 23:39

Ah bon ??

R n'est pas égale à R = ab(barre)

Sinon je sais que si mon tableau est exact V = ab(barre) + a(barre)b(barre

Posté par
siOk
re : Simplification 21-05-05 à 23:49

A  B  B(barre)  a.b(barre)    R (sur ton tableau)
0  0  1          0             0
0  1  0          0             0
1  0  1          1             0
1  1  0          0             1



a.b(barre) + a(barre).b(barre) = [a + a(barre)].b(barre) = 1.b(barre) = b(barre)

B  B(barre)  V (sur ton tableau)
0  1          0
1  0          0
0  1          1
1  0          1




attention à ne pas confonde
\bar{a}\bar{b}    et   \bar{ab}



enfin saut erreur

Posté par manon91 (invité)re : Simplification 22-05-05 à 00:02

Je pense qu'il faudrai qu'un correcteur, nous aide parce qu'on est un peu perdue la, enfin surtout moi

Posté par manon91 (invité)Radiateur électrique 22-05-05 à 11:02

Bonjour à tous,

Voici mon problème je n'aarive pas à resoudre le tableau se qui m'empeche donc de faire les questions suivantes, c'est donc pour cela que je vous demande votre aide :

Un radiateur électrique est équipé d'un ventilateur de manière a assurer le refroidissement de la resistance. le fonctionnement de l'ensemble est le suivant :
* Le ventilateur peut fonctionner seul
* Le radiateur est calculé pour ne fonctionner que si le ventilateur est deja en marche
* L'arret du ventilateur doit necessairement se produire apres l'arret du radiateur et non simultanement.

On utilisera deux interrupteurs a et b. On prendra deux variables logiques V (Ventilateur) et R (radiateur). On pose une logique positive soit si le ventilateur fonctionne on a V = 1 et s'il est à l'arret on aura v = 0.

a) traduire les conditions de fonctionnement ci dessous en condition logique et compléter le tableau suivant :

A B V R
0 0
0 1
1 0
1 1

b) Exprimer V et R en fonction de a et b. Simplifier ces equations.
c) Etablir le schéma de l'installation à l'aide des portes logiques élémentaires.

Je vous remercie d'avance pr tte vos réponses qui me seront très précieuse.

*** message déplacé ***

Posté par jerome (invité)re : Simplification 22-05-05 à 11:15

Bonjour,

A lire et a respecter :

[faq]multi[/faq]

merci

Posté par manon91 (invité)j-p 22-05-05 à 16:50

J-P (correcteur)
Peux-tu m'aider sur ce topic qui reste sans réponse ni solution s'il vous plait.

https://www.ilemaths.net/sujet-simplification-40913.html


*** message déplacé ***

Posté par Emma (invité)re : j-p 22-05-05 à 16:53

Autant dire que ceci est particulièrement mal vu

1. On ne choisit pas son correcteur, au risque de vexer les autres

2.Pour demander de l'aide, on le fait dans le topic initial !

*** message déplacé ***

Posté par manon91 (invité)re : j-p 22-05-05 à 16:57

Je suis sincèrement désolée de t'avoir vexée.

Je ne savais pas pour le topic initial, aussi désolé.

*** message déplacé ***

Posté par
H_aldnoer
re : j-p 22-05-05 à 16:57

ds ce cas va faire un tour ici -> [lien]

re Emma

*** message déplacé ***

Posté par manon91 (invité)re : j-p 22-05-05 à 16:59

Merci.

*** message déplacé ***

Posté par
H_aldnoer
re : j-p 22-05-05 à 17:00

pas de quoi

ce n'est pas pour t'embeter mais imagine ce que deviendrai le forum si chacun interpellé la persone dont il souhaiterai l'aide ...

*** message déplacé ***

Posté par manon91 (invité)re : j-p 22-05-05 à 17:02

Oui j'imagine et une nouvelle fois je m'en excuse. mais j'ai une interrogation demain et je n'ai pas comprit c'est pour cela désolé.

*** message déplacé ***

Posté par
H_aldnoer
re : j-p 22-05-05 à 17:03

et bien moi j'imagine pas

au moins j'espere que tu ne le refera plus.

*** message déplacé ***

Posté par manon91 (invité)re : j-p 22-05-05 à 17:06

oui ne t'inquiete pas

*** message déplacé ***

Posté par
H_aldnoer
re : j-p 22-05-05 à 17:08



*** message déplacé ***

Posté par
lyonnais
re : j-p 22-05-05 à 17:09

une chose est sur : il n'y a pas le droit de faire ce que tu vien de faire manon91 ...

N'empêche que tu as fait un bon choix en choisissant J-P lol . S'il viens te faire ton exo, tu es sûr d'avoir une réponse détaillée claire et sans équivoque !

ne recommence plus ( cf ce qu t'as dis H_aldnoer )

lyonnais


*** message déplacé ***

1 2 +




Vous devez être membre accéder à ce service...

Pas encore inscrit ?

1 compte par personne, multi-compte interdit !

Ou identifiez-vous :


Rester sur la page

Inscription gratuite

Fiches en rapport

parmi 1768 fiches de maths

Désolé, votre version d'Internet Explorer est plus que périmée ! Merci de le mettre à jour ou de télécharger Firefox ou Google Chrome pour utiliser le site. Votre ordinateur vous remerciera !